|
Оферта №16056, Цена: 237861 EUR Четиристаен, София, Красна Поляна, 122 кв.м, ет. 8/8, Тухла
|
|
|
Площ 122 м2, Етаж: 8 от 8
Строителство : Тухла
Отопление : Газ
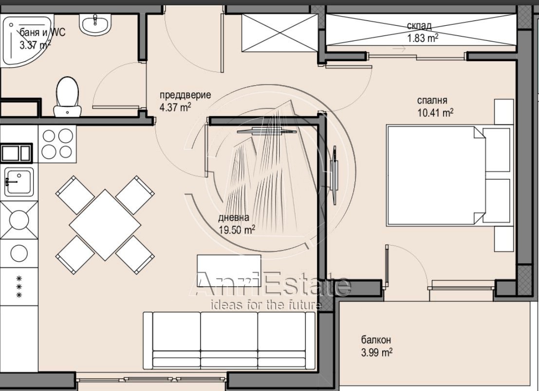
Агенция АНРИ прeдлага четиристаен апартамент в новострояща се гухлена сграда. АКТ 14. Луксозни общи части, асансьор.Доказан строител. МЕСТОПОЛОЖЕНИЕ: Намира се до спирки на градския транспорт, детска градина, училище. РАЗПРЕДЕЛЕНИЕ: 106,81 кв.м. застроена площ. Състои се от предверие, хол, трапезария и кухненски бокс, три спални, баня с тоалетна, складово помещение, две тераси. СЪСТОЯНИЕ: Продава се на шпакловка и замазка. Отопление на газ. ИЗЛОЖЕНИЕ: Юг. Възможност за закупуване на подземно паркомясто.
Агенция АНРИ прeдлага четиристаен апартамент в новострояща се гухлена сграда. АКТ 14. Луксозни общи части, асансьор.Доказан строител. МЕСТОПОЛОЖЕНИЕ: Намира се до спирки на градския транспорт, детска градина, училище. РАЗПРЕДЕЛЕНИЕ: 106,81 кв.м. застроена площ. Състои се от предверие, хол, трапезария и кухненски бокс, три спални, баня с тоалетна, с... |
Брокер: Брокер
Телефон:
Мобилен: 0885980205
|
Брокер: Брокер
Офис : Централен
Телефон:
Мобилен: 0885980205
e-mail : info1@anri.bg
|
|
|
|
|